Attraktive Gewerbe-/Fabrikationsräume zu vermieten
Anzahl Zimmer
–
Adresse
Lochmühlestrasse 5, 9056 Gais,
Monatsmiete
CHF 1‘000.–
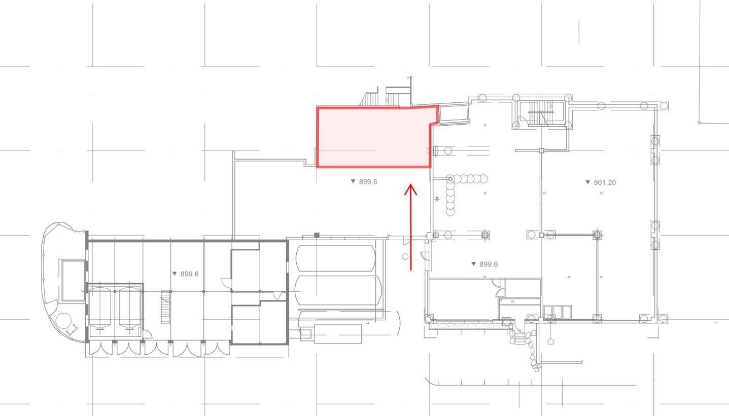
In unserem Fabrikgebäude in Gais vermieten wir moderne Gewerbeflächen mit einer robusten Infrastruktur.
- Verfügbare Fläche
- ca. 100 m² im UG 2, Nettomietzins CHF 1'000.00 pro Monat (ebenerdig erschlossen)
Das Layout ermöglicht die Realisierung von unterschiedlichen Nutzungskonzepten als Fabrikations-, Büro-, Lager- und Dienstleistungsfläche.
- Besonderheiten
- Ebenerdiger Eingang für einfache Zugänglichkeit
- Eigener Eingang mit Beschriftungsmöglichkeiten
- Grosses Tor für bequemen Zugang
- Robuste Infrastruktur
Bezug nach Vereinbarung möglich.
Die Lage ist verkehrsgünstig: Nur 18 Fahrminuten vom Zentrum St. Gallen und 15 Fahrminuten vom Zentrum Altstätten entfernt.
Möchten Sie sich ein eigenes Bild der Fläche machen oder wünschen Sie weitere Informationen? Wir freuen uns auf Ihre Kontaktaufnahme.
Angebot
- Nettomiete
- CHF 1‘000.–
Informationen
- Referenz
- Adresse
- Nutzfläche
- ..A11680
- Lochmühlestrasse 5
9056 Gais
- 100 m²
Download





