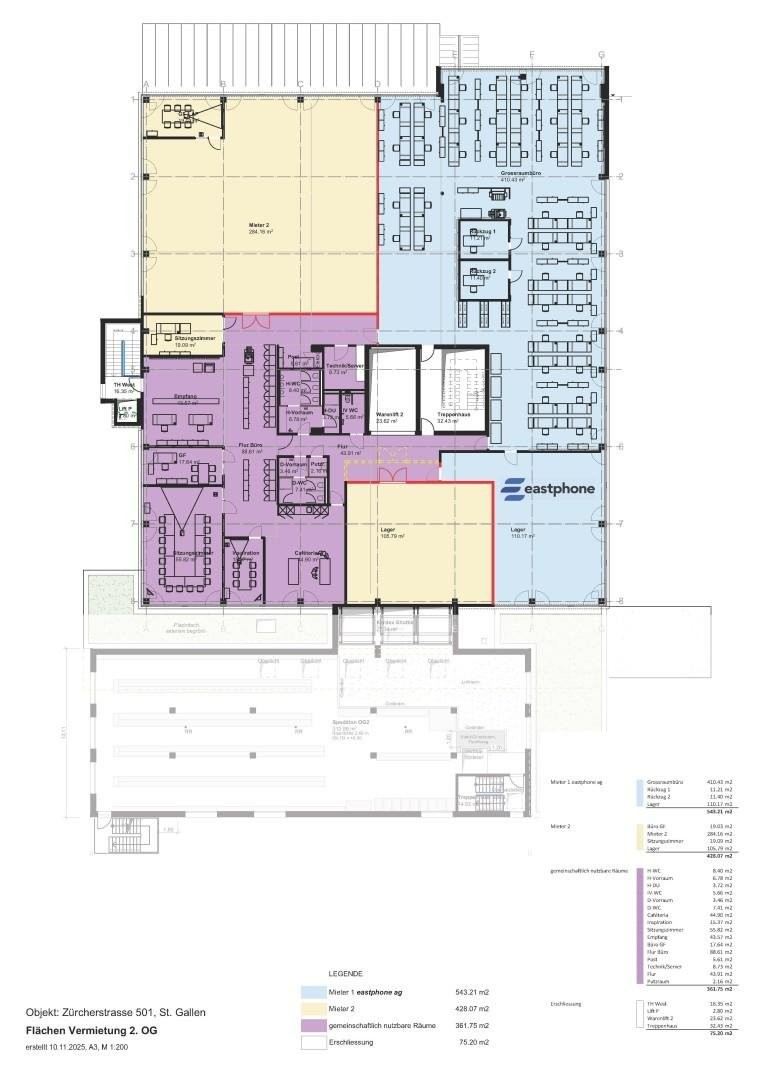
Bezugsbereite Fläche mit 500 m² - 1'350 m²
Ab Januar 2026 vermieten wir eine hochwertige, bereits ausgebaute Teilfläche mit rund 500 m².
Zusätzlich besteht die Option, die Fläche mit einem Anbau von rund 1'000 m² ins Dachgeschoss zu erweitern.
Ausbaustandard 2. OG
- Cafeteria mit Küche
- Offene und geschlossene Büroflächen
- Lärmschutz Grossraumbüro
- Empfangsbereich
- Einbauschränke
- Platz für Archiv
- Lagerraum
- Geschlechtergetrennte Toiletten und Duschen
- Warenlift (Tragkraft 4'000 kg) und Personenlift
- Deckenhöhe von 3.50 m
Die Erweiterungsoption eignet sich ideal für zusätzliche Büroflächen oder einen modernen Ausstellungsraum, der Ihre Kundinnen und Kunden beeindrucken wird.
Für Ihre Kundschaft und Mitarbeitende stehen ausreichend Parkplätze zur Verfügung.
Ihre Vorteile auf einen Blick:
- Top Lage direkt an der A1
- Optimale Anbindung an die Autobahn sowie den öffentlichen Verkehr
- Exzellente Sichtbarkeit: Ihr Firmenlogo wird bereits von der Autobahn aus wahrgenommen - ein unschlagbarer Vorteil für Ihre Markenpräsenz.
Die Zürcherstrasse ist ein zentraler Verkehrsknotenpunkt mit erstklassiger Erreichbarkeit. Hier profitieren Sie von einer repräsentativen Adresse, welche die Kunden, Partner und Mitarbeitende gleichermassen begeistern.
Setzen Sie ihr Geschäft an die Spitze mit dieser attraktiven Gewerbefläche! Kontaktieren Sie uns noch heute für weitere Informationen oder eine Besichtigung.
- Nettomiete m² / Jahr
- Verfügbar ab
- CHF Nettomiete.–
- 16.02.2026
- Referenz
- Adresse
- Stockwerk
- ..A11492
- Zürcherstrasse 501
9015 St. Gallen
- 2
- Lift
- Neubau/Ersteinzug
- Garage
- Parkplatz











