zurück

Charmante 3.0-Zi. Wohnung im EG

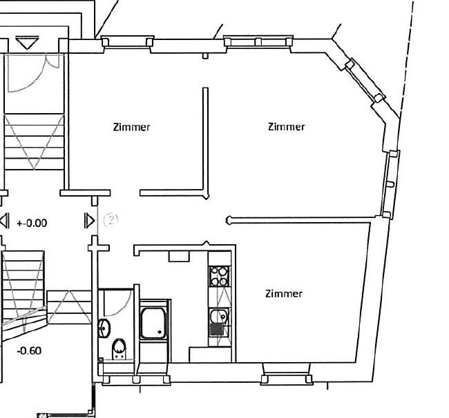
Anzahl Zimmer
3.0
Adresse
Singenbergstrasse 18, 9000 St. Gallen, SG
Monatsmiete
CHF 1‘400.–

Zu vermieten per 1. Oktober 2025 oder nach Vereinbarung. An attraktiver Wohnlage an der Singenbergstrasse 18 in St. Gallen erwartet Sie diese besondere 3-Zimmer-Wohnung mit viel Charme.

Highlights:
• Moderne Küche mit Elektroherd und Geschirrspüler
• Stilvoller Kachelofen (denkmalgeschützt, ausser Betrieb)
• Gemütliches Holztäfer
• Pflegeleichter Laminatboden
• Eigenes Kellerabteil

Lage:
Die Wohnung befindet sich in einem ruhigen Wohnquartier mit guter Anbindung an den öffentlichen Verkehr sowie Einkaufsmöglichkeiten und Naherholungsgebiete in der Nähe.

Parkplätze:
Parkplätze können für je HCF 75.00/mtl. dazu gemietet werden.
Haben wir Ihr Interesse geweckt? Dann kontaktieren Sie uns direkt im Onlineinserat über "Anbieter kontaktieren".

Sie erhalten anschliessend eine automatisierte E-Mail mit den Besichtigungsinformationen sowie die Möglichkeit sich digital auf die Wohnung zu bewerben und/oder uns allfällige Fragen zu stellen.

Angebot
Nettomiete
CHF 1‘200.–
Nebenkosten
CHF 200.–
Bruttomiete
CHF 1‘400.–
Verfügbar ab
01.10.2025
Informationen
Referenz
6943..3002
Adresse
Singenbergstrasse 18
9000 St. Gallen, SG

Anzahl Zimmer
3.0
Wohnfläche
64 m²
Eigenschaften
  • Parkplatz
Download