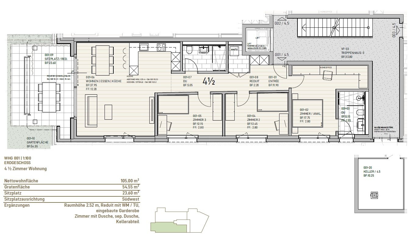
Neuwertige 4.5 Zimmer-Wohnung an guter Lage
Beschreibung: Wir bieten eine moderne und helle 4.5-Zimmerwohnung in einem neuwertigen Mehrfamilienhaus an der Brauerstrasse 31 in St. Gallen. Die Wohnung besticht durch ihre grosszügige Raumaufteilung und hochwertigen Ausstattung.
Der Innenbereich:
Die Wohnräume, das Entrée sowie die Küche sind mit einem hochwertigen Eichenparkett versehen. Sämtliche Fenster, Fenstertüren und Hebeschiebetüren der Wohnungen sind aus Holz-Metall. Sorgfältig ausgewählte Boden- und Wandplatten zieren die Nasszellen. Zur attraktiven Ausstattung gehören nicht nur ein eigener Waschturm direkt in der Wohnung, sondern genauso eine eingebaute Garderobe und ein persönlicher Kellerraum. Eine PV-Anlage mit einem Energiemanagementsystem und eine Wärmepumpe sorgen für nachhaltiges Wohnen und günstige Nebenkosten.
Zusätzlichen Wohnkomfort bringen die gemeinschaftlich nutzbaren Fahrradabstellplätze. Tiefgaragenparkplätze können optional dazu gemietet werden. Selbstverständlich sind alle Etagen mittels einer Liftanlage barrierefrei erschlossen.
Abwechslungsreiche Umgebung
Die Liegenschaft bietet eine optimale Lage und eine sehr gute Infrastruktur. Hier finden Sie einen attraktiven und abwechslungsreichen Wohnraum für unterschiedlichste Lebensphasen, Wohnanforderungen & Wünsche.
Haben wir Ihr Interesse geweckt? Dann kontaktieren Sie uns direkt im Onlineinserat über "Anbieter kontaktieren".
Sie erhalten anschliessend eine automatisierte E-Mail mit den Besichtigungsinformationen sowie die Möglichkeit sich digital auf die Wohnung zu bewerben und/oder uns allfällige Fragen zu stellen.
- Nettomiete
- Nebenkosten
- Bruttomiete
- Verfügbar ab
- CHF 2‘300.–
- CHF 280.–
- CHF 2‘580.–
- 01.04.2026
- Referenz
- Adresse
- Anzahl Zimmer
- Wohnfläche
- 1380..4501
- Brauerstrasse 31
9000 St. Gallen, SG
- 4.5
- 105 m²



